ZOOM architecten

Team
ZOOM architecten
Callebaut architecten
Studio Basta
Opdrachtgever
Dhr Carl De Clercq
Locatie
Zedelgem
Oppervlakte
3130 m2
bouwkost
5 100 000 euro excl. BTW

project TRLO.

Indrukwekkend (zorg)wonen op een kasteelsite te Zedelgem.

In samenwerking met Callebaut Architecten maken we een ontwerp voor het Goed Ter Loo. Dit vijf hectaren grote parkdomein bevat een kasteel, een hoeve en een klooster met kapel daterend uit 1949. Het geheel is opgenomen door de gemeente Zedelgem op de lijst van het erfgoed op haar grondgebied. Het park is sinds 2012 publiek toegankelijk.

De bouwheer wenst in het voormalig klooster een zorgcentrum op te richten voor kinderen met autisme. In het kasteel worden appartementen ingericht als zorghotel. De hoeve zal dienst doen als conciergewoning. Landschapsarchitect Studio Basta maakt deel uit van het team. Zij richten het park in als verbindende groenstructuur.

Visualisaties: Els Lenaerts

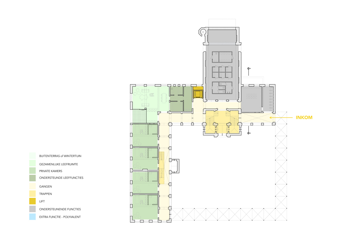
het verhaal

Een nieuwe structuur als pandgang

Op de originele bouwplannen van het klooster stond een pandgang getekend die volledig rond liep. Het deel hiervan dat langs buiten liep is nooit gebouwd, maar was bedoeld om de klassieke kloostertuin volledig af te sluiten van de ‘buitenwereld’. Dit ‘vermiste’ deel van de rondgang wordt opnieuw geïntroduceerd.


De nieuwe structuur is een overdekte buitenruimte, die de errond geschakelde functies rechtstreeks ontsluit. Het ontwerp wordt opgevat als een heel fijne structuur in wit gelakt plaatstaal. 

De nieuwe structuur maakt de wandeling in de pandgang van het klooster af en de “binnenkoer” afsluitbaar. De pandgang laat op mooiere dagen het “dwaalgang” principe toe: een kwaliteit, vaak voorzien in (nieuwbouw) zorgwoon projecten. 

verticale circulatie op maat

De toekomstige functie & organisatie van het gebouw vraagt de toevoeging van nieuwe trappen en liften die perfect toegankelijk zijn voor alle toekomstige gebruikers. 

Nieuwe verticale circulatie betekent nieuwe verticale openingen. Dit is een kans om een andere ruimtelijkheid te introduceren in het horizontale gebouw. We breken het gebouw op die manier open dat de lange pandgangen van de kloosterarchitectuur doorbroken worden. Deze ingrepen maken het gebouw minder introvert, donker en zwaar.

Twee keer breken we. Twee keer brengen we licht, lucht en zuurstof binnen in de gesloten baksteen architectuur. De nieuwe trappen worden perfect ingepast in het bestaande klooster. De maatvoering en ritmiek van de aanwezige structuren zijn sturend.

de zorg appartementen

De pandgang vormt samen met de nieuwe verticale circulatie en de aaneengeschakelde leefruimtes de vaste, leesbare structuur van het gebouw.  
Daaraan worden een aantal duidelijke zones gekoppeld die bestemd zijn voor wonen. Deze ruimtes zijn flexibel in te richten met grotere of kleinere zorg appartementen van verschillende types/groottes. 

Er zijn 3 bouwlagen in het bestaande klooster. Er wordt een gradiënt gecreëerd van meest hulpbehoevend op het gelijkvloers naar meer zelfstandig wonen op de bovenste verdieping.

Elke bouwlaag krijgt daarbij een eigen sfeer & kleur. Dit draagt bij tot een grotere herkenbaarheid en oriëntatie binnen het gebouw voor de bewoners.

zin in meer?

bekijk deze projecten